
Office Zone 1 - Ground Floor
3,020 sq ft
modern and
open-plan office
20 - 30 Workstations
fully-furnished,
if required
EPC Rating A+
great for reducing
heating bills
Monthly Rent
£2,083 per
calendar month
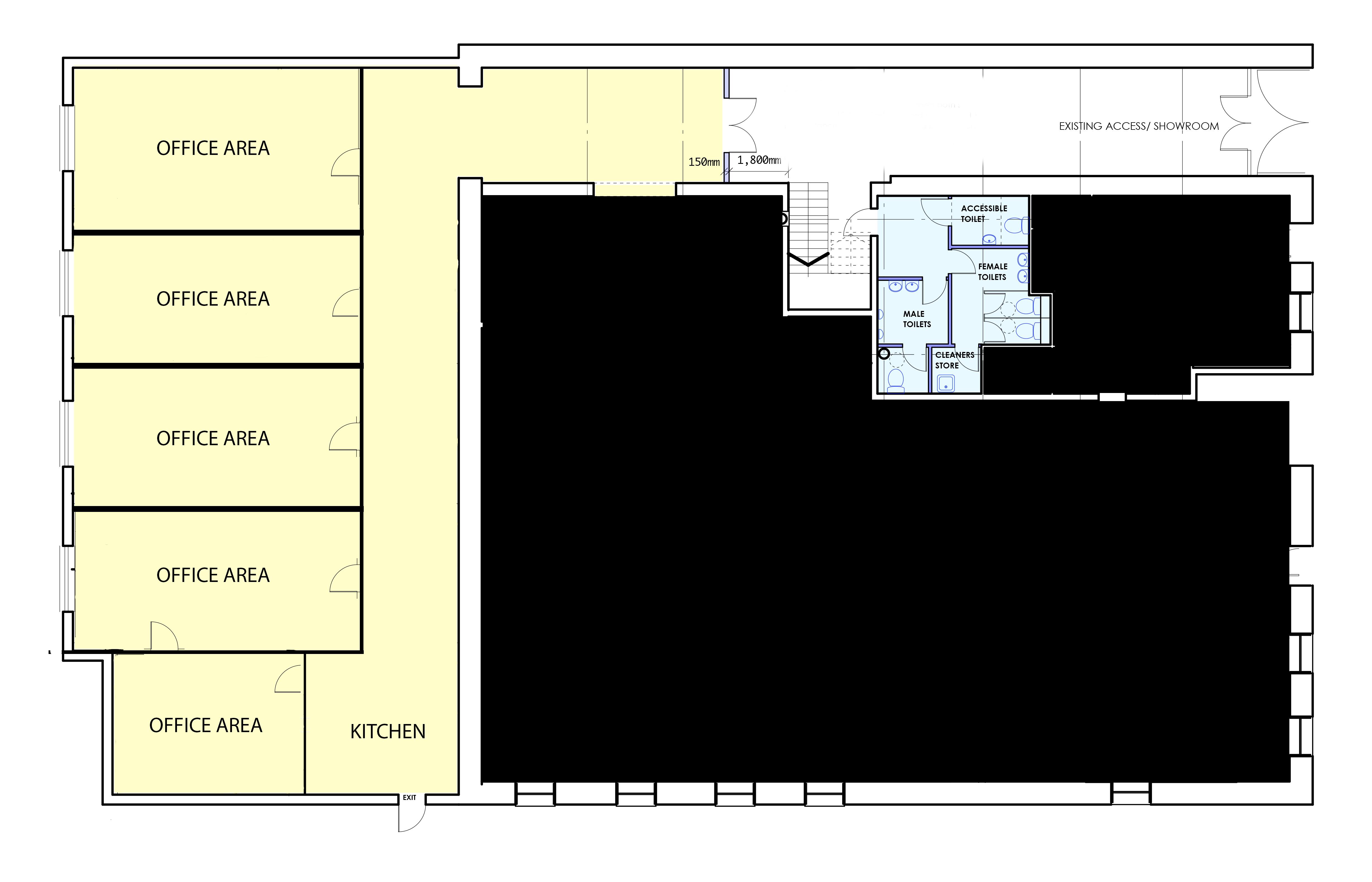
We offer a fantastic ground floor office suite, 3020 square foot office that can accommodate 20 to 30 workstations with floorplans to make the process even easier. From the kitchen to the reception area and boardroom and private meeting rooms, we have everything you need to get your business up and running. Contact us today to discuss your office space needs.

Meeting & Boardrooms
Enclosed spaces for meetings, presentations, and private reviews.
'The Shore' Tram Stop
15 minutes to city centre,
40 minutes to Edinburgh Airport.
24 / 7 Secure Access
Enjoy secure entry for complete flexibility and peace of mind.
Disabled Access
For staff members working in
offices on the ground floor.
Breakout Facilities
Modern kitchen and breakout spaces designed for downtime and relaxing.
No Hidden Costs
We offer internal insuring / repairing leases, saving you money on repairs.
Office Zone 1 - Ground Floor
Accommodation
Up to 30 workstations. Kitchen, reception area, breakout area, boardroom.
Utilities
Fantastic ground floor office suite, Private meeting rooms & breakout areas. 24-hour access. Shower & kitchen facilities. Disabled Toilets and wheelchairs access. Pet friendly. Furnished if required. Bike shed & car parking around the area of the building.
Energy Performance Certificate
The EPC Rating is A+
A copy of the recommendation report can be provided upon request.
Entry
Upon agreement of a short- or long-term lease
and completion of a formal missive under Scots Law.
Rent
£25,000 per anum. The subjects are available to lease on an
Internal Repairing and Insuring (IRI) basis for a term to be agreed.
Legal Costs
Each party shall bear their own legal costs in the preparation of the lease with the incoming tenant liable for any Registration Dues or LBTT thereon.
Rateable Value
According to the Scottish Assessor's website (www.saa.gov.uk), the subjects have a Rateable Value of £12000 Net.
About Mitchell House
Located in the heart of Leith, Mitchell House offers modern offices up to 3,020 ft² in a beautifully converted Victorian whisky bond. With excellent facilities, private offices of all sizes, and flexible leases starting at just £8.28 per ft², our space is perfect for businesses of all kinds. The office is only a 15-minute tram journey from the city centre and 40 minutes from Edinburgh Airport.










